X
WhatsApp

La Biblioteca Popular Jorge W. Ábalos recauda fondos para ampliar su sede

Busca financiar la nueva sala de lectura de su sede ubicada en el "corazón" del barrio Autonomía.

31/08/2021

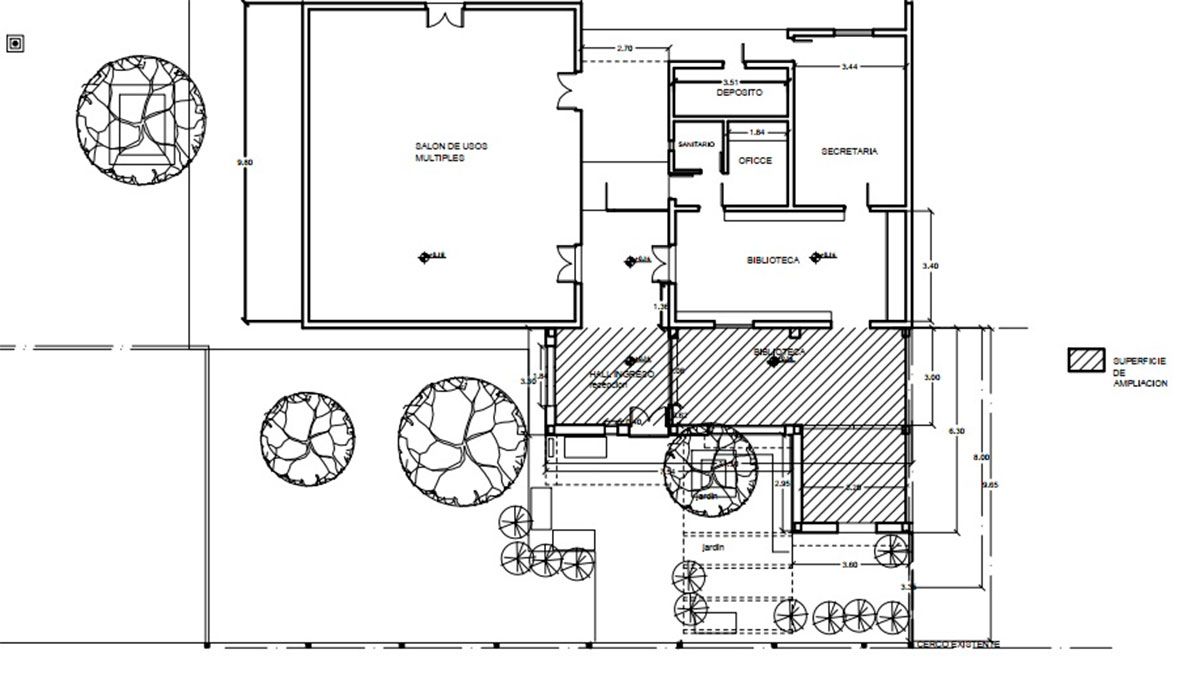
La Biblioteca Jorge W. Ábalos del Barrio Autonomía se encuentra en la búsqueda de un anhelado sueño, la ampliación de su sede

Biblioteca Jorge W Abalos Biblioteca Jorge W Abalos

Hace mucho tiempo que estamos trabajando con el objetivo de ampliar nuestra sede, hacerla más cómoda y funcional para los usuarios. El Fondo Fotográfico también necesita su propio espacio. La pandemia frenó el proyecto ya que por razones sanitarias no podemos organizar nada de lo que solíamos hacer para recaudar fondos: eventos, ferias...

Por eso te pedimos tu colaboración. ¿Nos donarías un ladrillo? Del monto que prefieras, hay varias opciones. Con lo recaudado compraremos los materiales necesarios para concretar este proyecto. Día a día te informaremos quienes son los donantes y haremos la rendición pública de los fondos.

Biblioteca Jorge W Abalos Biblioteca Jorge W Abalos

El proyecto de ampliación es de la Arq. Norma Piga, quién interpretó las necesidades de refuncionalización del espacio y lo planificó con el fin de modernizar este sector de la biblioteca respetando el entorno existente.

Es importante aclarar, que, de la donación que realices, MercadoPago nos descontará el costo del servicio, es por ello que recibiremos un par de pesos menos de lo que aportes.

Formas de donar: https://bibliotecajwa.com.ar/donaciones.html